














Tenure: Leasehold
**NEW SHARED OWNERSHIP OPPORTUNITY**
One bed apartments are available from £130,000 on a 65% shared ownership basis. The remaining 35% will be owned by Heylo Housing. Rent is charged at 2.75% of the remaining shares per month and paid to Heylo Housing. This shared ownership opportunity is eligible for buyers who are looking to get on the property ladder and live in an esteemed development in the centre of West Kirby. Contact us to find out if you are the right candidate.
Station House is situated in an enviable haven in the heart of West Kirby’s desirable town centre. With transport links and facilities literally a stones throw from your front door, this is a rare opportunity to purchase.
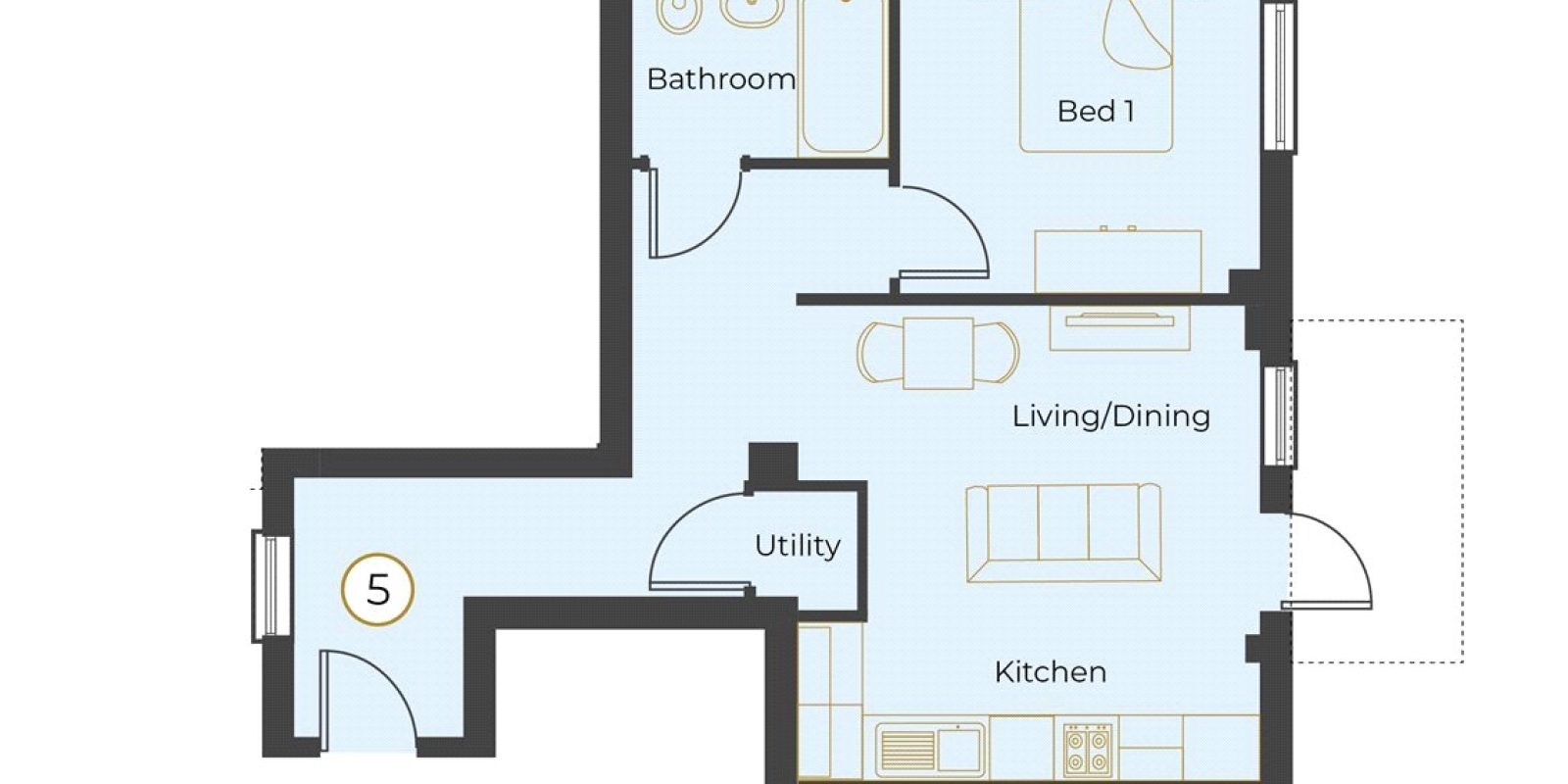
There are four one bedroom apartments available, all conveniently situated on the ground floor and benefit from a small patio area to enjoy the well maintained, landscaped communal gardens.
Welcome to another stunning Blueoak Estates development. Blueoak Estates take immense pride in being recognized as an award-winning local property developer having earned numerous prestigious awards, affirming their commitment to innovative design and superior construction quality. Welcome to Station House. Station House is an exclusive collection of 32 one- two- and three-bedroom luxury apartments. This development offers a rare opportunity to reside in the very centre of West Kirby. The design of each apartment has been carefully considered to offer all that you would expect from modern living, with a vibrant town centre at your front door.
CHECK YOUR ELIGIBILITY
You are eligible to purchase a Shared Ownership property if the following relates to your circumstances:
1. Your household income does not exceed £80,000 per annum (outside London)
2. You are a first-time buyer, or used to own a home, but cannot afford to by 100% of a property now
3. You have a deposit (at least 5% of the share value) and reservation fee
4. You are a British citizen or have a official settlement status
5. You are over 18
6. You have been registered and approved for shared ownership by a Financial Advisor (we can advise you on this step if you wish)
7. You have passed a financial assessment, demonstrating you are able to purchase the minimum share value and support the all the purchasing & monthly costs involved*
8. You have a good credit history (no bad debts or County Court judgments) and can afford the regular payments and costs of buying a home
9. The property will be your principle and only home at time of purchasing
* Ask for full information of the costs involved
Few could argue the merits of West Kirby. A thriving arts and social scene are complemented by the bustling community atmosphere. With easy access to swimming and leisure facilities, supermarkets, medical centres, schools and libraries, your everyday needs are more than covered. The lively bistro culture of West Kirby is also right on your doorstep, offering a wide range of shops, cafes, bars and restaurants whenever you wish. Station House is within easy reach of West Kirby train station, with trains running to Liverpool Central twice every hour. You can be in the centre of this North West hub within 37 minutes or catch connecting services to historic Chester. Road access to the M53 is swift, which links directly to Liverpool via the Mersey Tunnel and Manchester via the M56. Direct bus routes also link West Kirby to Liverpool. As if that wasn’t enough, there are two international airports located less than an hour’s drive away.
Apartment Numbers 3,4,5 and 6 are all located on the ground floor. They are all exceptional one-bedroom apartments with finishing touches that complement your lifestyle. Open plan kitchen, dining and living areas allow for a feeling of easy flow and space. Quartz worktops with matching upstands offer the perfect combination of style and practicality, complimented by premium Bosch appliances. For the bathroom, elegant design has been combined with practical solutions to ensure you start every day feeling refreshed. Bathrooms include contemporary sanitaryware with concealed fittings, heated towel radiators and luxurious baths. The design ethos is luxury-as-standard which is why you’ll also find hotel-style showerheads and designer tiles in every bathroom.
There is a Communal cycle store and refuse store. For extra peace of mind there is a CCTV system throughout the building & a video intercom door entry system. The apartments benefit from gas central heating. All apartments come with a ten-year structural warranty from the date of completion & are leasehold on a 999-year lease.
Please note that imagery shown is for illustrative and marketing purposes. Where possible, images of the actual property for sale will be used however where homes are being sold off-plan this may not be possible and images of similar properties will be used. The purpose of the images used is to illustrate possible combinations of fixtures, fittings, furniture, specifications, and décor all of which may be subject to additional costs above and beyond the price given for the standard specification. For detailed information on prices for homes please contact our sales team. Please also note that some images used will be computer-generated and may vary from the final finish of the home you wish to purchase or may not depict an accurate reflection of the external environment of the property. Blueoak Estates 2024